最近长春的房地产市场可是热闹非凡呢!这不,万盛珑玺项目又爆出了新消息,让人忍不住想要一探究竟。今天,就让我带你来揭开这个神秘项目的面纱,看看它究竟有何魅力!

长春万盛珑玺,位于长春市核心地段,周边配套设施齐全,交通便利。项目占地约XX亩,总建筑面积约XX万平方米,涵盖住宅、商业、教育等多种业态。听说,这里将成为长春市的新地标!

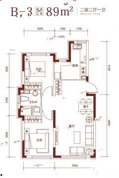
万盛珑玺的建筑设计独具匠心,采用了现代简约风格,线条流畅,造型别致。小区绿化率高达XX%,让你在家门口就能享受到大自然的清新空气。此外,项目还特别注重居住舒适度,室内空间布局合理,采光充足,让你住得舒心。

说到周边配套,万盛珑玺可是下足了功夫。项目周边有XX所名校,让孩子从小接受优质教育;XX家大型购物中心、XX家餐饮店、XX家银行等生活配套一应俱全,满足你的日常需求。而且,项目紧邻XX公园,闲暇时光,可以和家人朋友一起散步、健身,享受悠闲时光。
交通方面,万盛珑玺可谓是四通八达。项目周边有XX条公交线路,XX条地铁线路,出行十分便利。此外,项目距离长春龙嘉国际机场仅XX公里,让你轻松出行,畅享全国。
在价格方面,万盛珑玺也是极具竞争力。项目目前推出了多种优惠活动,如团购优惠、按时付款优惠等,让你购房更加划算。而且,项目户型多样,从XX平方米到XX平方米不等,满足不同家庭的需求。
最近,关于万盛珑玺的最新爆料可谓是沸沸扬扬。据悉,项目将引进国际知名品牌酒店,打造成为长春市的高端商务中心。此外,项目还将建设一座大型购物中心,引入国内外知名品牌,为市民提供一站式购物体验。
更有消息称,万盛珑玺将打造一座XX米高的地标性建筑,成为长春市的标志性建筑之一。届时,长春市的天际线将再次焕然一新。
长春万盛珑玺,以其优越的地理位置、独特的建筑设计、完善的周边配套、便捷的交通优势和极具竞争力的价格,成为了长春市房地产市场的一颗璀璨明珠。相信在不久的将来,这里将成为长春市的新宠,吸引无数购房者前来抢购。小伙伴们,你们准备好加入这场抢购大战了吗?